Immobiliària Barcelona

CASA CON TERRENO EN EL CENTRO

  • 350.000€
08760 Martorell

Descripción

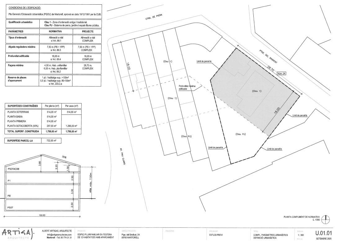
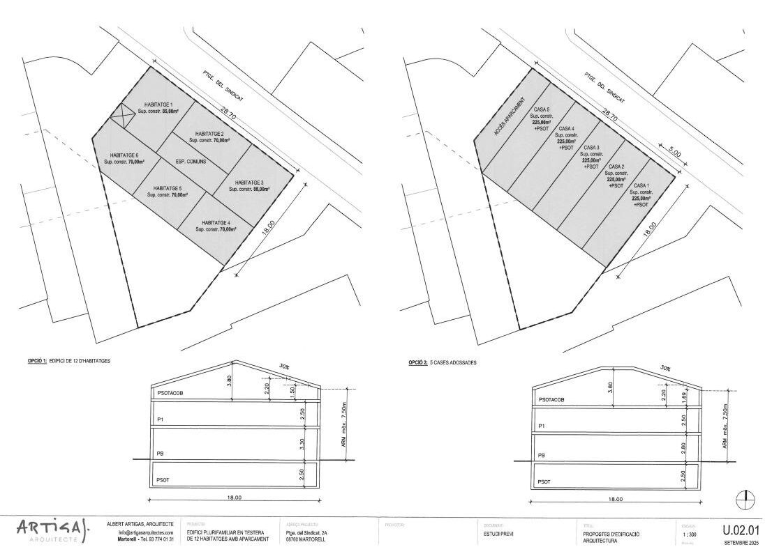
URBEFINQUES ROSANES OS PRESENTAMOS EN EXCLUSIVA ESTA FINCA QUE DISPONE DE UNA BONITA CASA DE 161 M2 PARA REFORMAR CON UN PRECIOSO PATIO DE 571 M2.~ESTE MAGNÍFICO TERRENO URBANIZABLE CON CASA ESTA UBICADO EN EL CENTRO DE MARTORELL. CUENTA CON UN ESTUDIO PREVIO REALIZADO POR ARQUITECTOS LOCALES DE LAS POSIBLES OPCIONES DE CONSTRUIR Y EL RESULTADO SON 12 VIVIENDAS EN 2 PLANTAS O HASTA 6 CASAS.~~SI TIENES INTERÉS EN ESTE CASA/TERRENO NO DUDES EN CONTACTAR CON NOSOTROS, TERRENOS COMO ESTE EN EL CENTRO NO LOS HAY TODOS LOS DÍAS.~

Detalles

ID de propiedad
VMART1320
Dormitorios
4
Baño
1
Tamaño de propiedad
161.00 sqft
Área terrestre
732 sqft
Año de construcción
1926
Actualizado en noviembre 14, 2025 a 12:12 pm

Caracteristicas

Dirección

  • Ciudad Martorell
  • Código postal 08760
  • Zona Rodalies martorell

Información de contacto

Immobiliaria Barcelona
  • Immobiliaria Barcelona
  • 932 107 093
Ver anuncio

Pregunte por este inmueble