Immobiliària Barcelona

Piso en venta en Aldana, Barcelona – luminoso, elegante y listo para entrar a vivir

  • 425.000€
08015 Barcelona
Destacado Comprar Buen estado
Piso en venta en Aldana, Barcelona – luminoso, elegante y listo para entrar a vivir
08015 Barcelona
  • 425.000€

Descripción

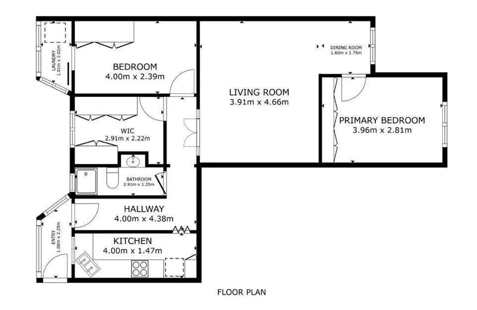
Hay pisos que parecen hechos para empezar de nuevo.~Entrar aquí es notar que todo está en su sitio: la luz, la calma y ese equilibrio entre elegancia y sencillez que solo se consigue cuando el espacio está bien pensado.~~Este hogar en la calle Aldana es perfecto para quien busca vivir en el centro sin el caos del centro.~Un lugar que combina el diseño actual con el encanto de los edificios clásicos de Barcelona.~Cada rincón está aprovechado al detalle: la cocina donde el orden invita a cocinar sin prisa, el salón donde las tardes se alargan con una copa de vino, y ese dormitorio que se siente como un refugio.~~El piso está en buen estado, listo para entrar a vivir, y situado en una zona con todos los servicios cerca: parques, colegios, hospitales y transporte.~Ideal si lo que quieres es vivir bien, sin preocuparte por reformas, o si buscas una inversión sólida en una de las zonas más cómodas y mejor conectadas de Barcelona.~~Un piso con estilo propio, pensado para los que valoran la calidad, la tranquilidad y la estética.~~Superficie útil: 71 m²~Superficie construida: 82 m²~Ubicación: Carrer Aldana – Barcelona~~Ofrecido por Immobiliària Barcelona® – Un club de servicios inmobiliarios a tu disposición.~~El precio no incluye impuestos legalmente aplicables.~El inmueble se entrega sin bienes muebles, incluso si aparecen en las fotografías.~Puedes encontrar más información sobre el cálculo de los impuestos que te correspondan en tu caso particular en: atc.gencat.cat/ca/inici~

Detalles

ID de propiedad
AP-Llar1696
Dormitorios
3
Baño
1
Tamaño de propiedad
82.00 sqft
Año de construcción
1960
Actualizado en diciembre 16, 2025 a 10:52 am

Dirección

  • Ciudad Barcelona
  • Código postal 08015
  • Zona Sant Antoni

Información de contacto

Immobiliaria Barcelona
  • Immobiliaria Barcelona
  • 932 107 093
Ver anuncio

Pregunte por este inmueble