Immobiliària Barcelona

Descripción

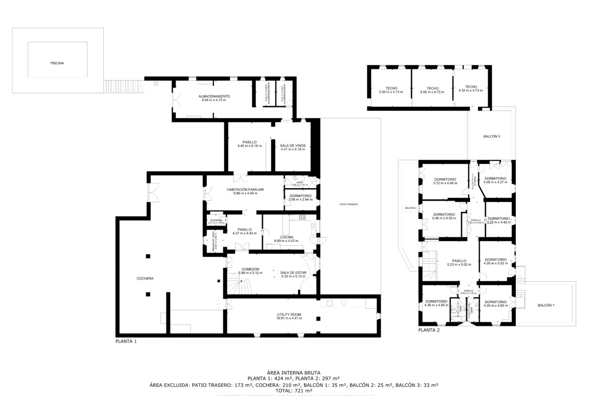
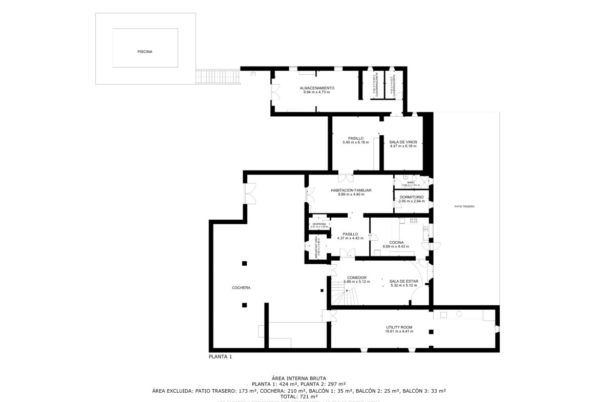
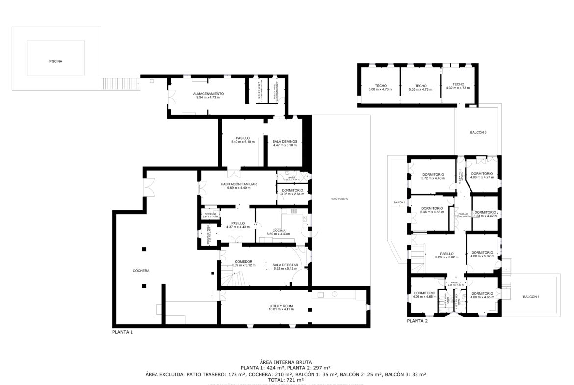
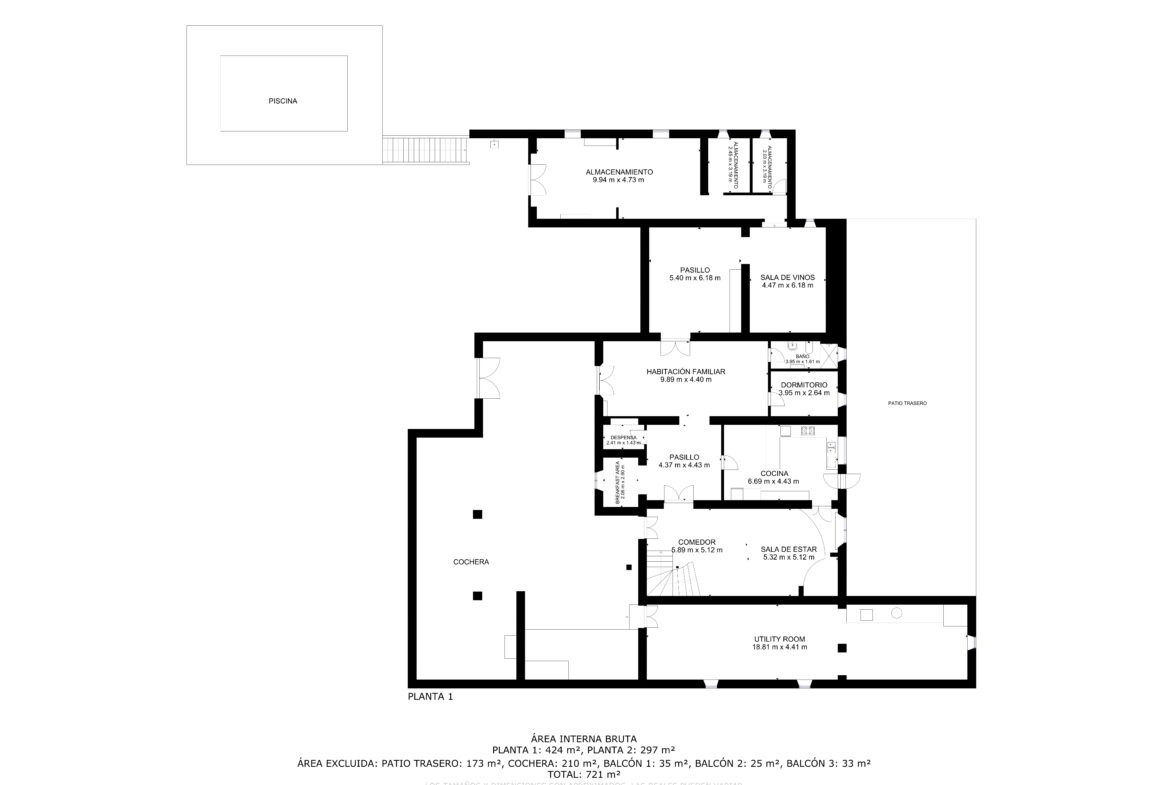
Te presentamos Can Perich, una masía catalana única que combina el encanto de su legado histórico con las comodidades del presente. Esta majestuosa propiedad, mencionada en documentos que datan de 1333, se erige como un testimonio vivo del tiempo, ideal para quienes buscan una vivienda con alma e historia.~~Un legado centenario~Originalmente conocida como Ça Roca, esta masía fue hogar de la familia Huguet, cuyos orígenes se entrelazan con la tradición de la región. Las inscripciones grabadas en piedra revelan la longevidad de esta casa:~~· En la entrada principal, una inscripción recuerda: «Miquel Huguet me fecit 1726».~· La clave del portal ostenta la fecha 1724, mientras que las ventanas exhiben grabados con los años 1686 y 1705.~· Estos detalles no solo refuerzan la autenticidad de la masía, sino que cuentan una historia que se siente en cada piedra de sus sólidos muros. Su nombre actual, Can Perich, proviene de los masoveros que la habitaron en épocas posteriores.~~Arquitectura que sorprende~En sus cimientos, la propiedad conserva formaciones rocosas que dieron lugar al nombre original, un detalle distintivo que conecta la construcción con la tierra misma. Además, las sucesivas renovaciones han transformado esta masía en una vivienda funcional y moderna, sin perder un ápice de su carácter histórico.~~Una casa para disfrutar y compartir~Más allá de su rica historia, Can Perich es un espacio diseñado para disfrutar la vida.~~Amplias zonas comunes como el salón-comedor con chimenea y una cocina renovada que invita a crear experiencias gastronómicas inolvidables.~7 dormitorios dobles distribuidos con encanto y conectados con terrazas privadas que ofrecen vistas espectaculares.~Un patio exterior y jardín perfectos para eventos, relajación o actividades en familia, complementados por una piscina de 10×5 metros que completa este oasis privado.~Ubicación inmejorable~Situada estratégicamente, la propiedad está a solo 25 minutos de la playa, 26 minutos de Figueres y 8 minutos de la entrada a la autopista AP-7.~~Una oportunidad irrepetible~Si buscas algo más que una vivienda, Can Perich te ofrece un hogar lleno de historia, carácter y un entorno ideal para disfrutar de la tranquilidad sin renunciar a la comodidad.~~Descubre la magia de Can Perich~Esta masía no es solo una propiedad, es una obra de arte habitable. Contáctanos ahora y déjate cautivar por su historia, su arquitectura y sus posibilidades. ¡Tu sueño mediterráneo te espera en Can Perich!~~~~En cumplimiento de las obligaciones de información previstas en la Ley 10/2025, de 28 de diciembre, de servicios de atención a la clientela y transparencia, así como en la normativa sectorial vigente, se hace constar que el precio indicado no incluye los gastos e impuestos inherentes a la adquisición, los cuales se desglosan a continuación:~~· Impuesto sobre Transmisiones Patrimoniales (ITP): Se aplicará el tipo impositivo vigente en la Comunidad Autónoma de Cataluña (Valor del Inmueble hasta 600.000€ = 10% (CÁLCULO 87.780€), de 600.001€ a 900.000€ = 11%, de 900.001€ a 1.500.000€ = 12%, más de 1.500.000€ = 13%), sin perjuicio de los tipos reducidos del 5%, y el 7% aplicables según las circunstancias personales del comprador o las características del inmueble o los tipos reducidos del 3% o 4% aplicables, en los términos legalmente establecidos, para la adquisición de vivienda habitual situada en municipios de menos de 5.000 habitantes, siempre que concurran los requisitos exigidos por la normativa vigente. El impuesto se devenga sobre el Valor de Referencia de Catastro o el precio de venta, aquel que resulte superior.~~· Gastos de Notaría: Los honorarios notariales se calcularán conforme al arancel oficial regulado en el Anexo I, del Real Decreto 1426/1989, de 17 de noviembre, por el que se aprueba el arancel Notarial.~~~~· Gastos de Registro: La inscripción en el Registro de la Propiedad se facturará según el arancel oficial establecido en el ANEXO I, del Real Decreto 1427/1989, de 17 de noviembre, por el que se aprueba el arancel de los Registradores de la Propiedad.~~· Gastos de Gestión (Gestoría): Los honorarios por la tramitación administrativa, liquidación de impuestos e inscripción registral ascienden a 600 € (IVA incluido).~~· Honorarios Agencia del Vendedor: incluidos en el PVP.~~· Honorarios Agencia del comprador: Se informa que eventualmente, podrían existir honorarios profesionales a cargo del adquirente, en aquellos casos, en que se hubieran contratados servicios de encargo de compra (PSI), Personal Shopper Inmobiliario. NO VINCULADOS AL PRECIO DE COMPRA.~~Para una información exhaustiva sobre el funcionamiento, tipos impositivos y bonificaciones del ITP en Cataluña, puede consultar el portal oficial de la Agencia Tributaria Catalana: https://atc.gencat.cat/es/tributs/itpajd/tpo/tarifes-tipus/~

Detalles

ID de propiedad
7135
Dormitorios
8
Baños
3
Tamaño de propiedad
840.00 sqft
Área terrestre
10000 sqft
Año de construcción
1980
Actualizado en abril 16, 2026 a 1:53 am

Caracteristicas

Dirección

  • Ciudad Saus
  • Código postal 17468
  • Zona Pirineo de girona

Información de contacto

Immobiliaria Barcelona
  • Immobiliaria Barcelona
  • 932 107 093
Ver anuncio

Pregunte por este inmueble