Immobiliària Barcelona

Piso con encanto de dos habitaciones junto a la Sagrada Familia

  • 374.000€
08025 Barcelona
Comprar Semireformado
Piso con encanto de dos habitaciones junto a la Sagrada Familia
08025 Barcelona
  • 374.000€

Descripción

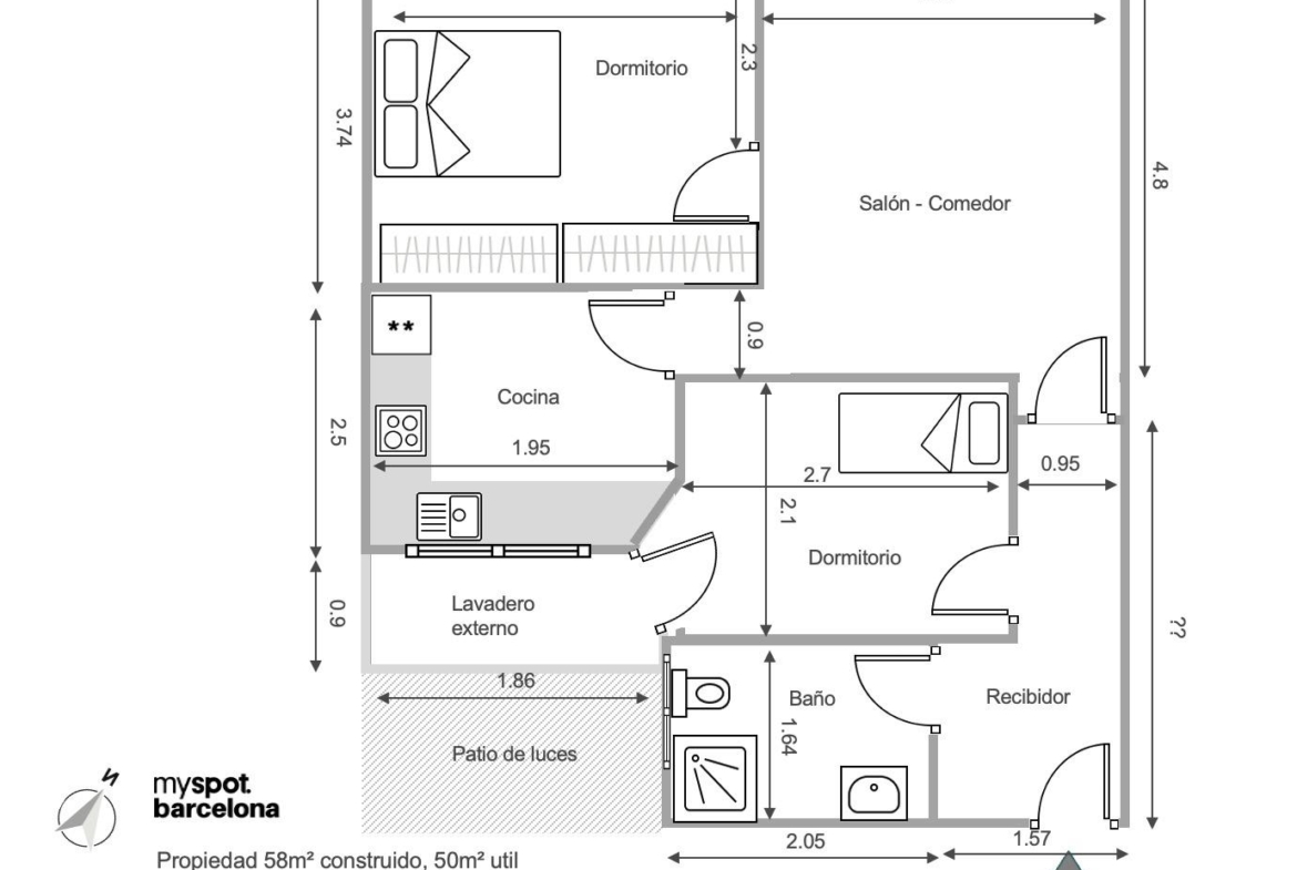
Piso con encanto de dos habitaciones junto a la Sagrada Familia~~2 habitaciones · 1 baño · cocina totalmente equipada · exterior · 2.ª planta real sin ascensor · mucha luz~~Bienvenido al encantador barrio de la Dreta de l’Eixample, la Sagrada Família, la zona mas emblemática de Barcelona. Muy cerca de la Basílica mas conocida del mundo y del modernista Hospital de Sant Pau.~MySpot Barcelona presenta este piso exterior , recién pintado y reformado situado en la calle Còrsega, en una finca tranquila y bien cuidada con pocos vecinos.~~La vivienda de 58 m² construidos orientado hacia noroeste y todo exterior consta de dos habitaciones de las cuales una doble con armario de diseño empotrado, luz de la mañana y, otra individual, con salida al patio interior con luz de la tarde.~~El baño es completo, con plato de ducha y ventana, se entrega amueblado. La cocina está totalmente equipada y amueblada, con placa de inducción eléctrica y electrodomésticos incluidos: nevera, lavavajillas, microondas, lavadora y horno.~~Otras caracteristicas: Agua caliente de gas ciudad, aire acondicionado split, suelo laminado, puertas de madera, ventanas con doble acristalamiento, persianas automáticas, altillo espacioso, se entrega recién pintado y reformado, listo para entrar a vivir.~~La vivienda se encuentra en una primera planta (segundo real) sin ascensor en una finca con solo 9 viviendas distribuidas en 4 plantas, lo que garantiza un ambiente residencial y tranquilo.~~Dispone de azotea comunitaria de aproximadamente 44 m² subiendo solo 3 escaleras que se permite usar parcial y para usos especificos bajo el reglamento interno de la comunidad. ~La comunidad está bien mantenida y ha realizado derramas. La ITE está pasada, y la vivienda cuenta con Cédula de Habitabilidad y Certificado Energético en vigor.~~Ubicación~Situado en la calle Còrsega, en el corazón de la dreta de l’Eixample de Barcelona y muy cerca de la famosa basílica de la Sagrada Familia, del modernista Hospital de Sant Pau y de la Facultad de Medicina del Campus de St. Pau de la UAB. Se trata de una zona consolidada y muy bien conectada, con acceso inmediato a transporte público, comercios de proximidad, servicios, colegios y oferta gastronómica. Un entorno urbano cómodo, práctico y muy demandado tanto para vivir como para invertir.~~MySpot Barcelona es una agencia inmobiliaria boutique y multilingüe especializada en acompañar a compradores y propietarios con un servicio cercano, transparente y altamente profesional, combinando conocimiento local con estándares internacionales de calidad.~~En cumplimiento de la Ley 10/2025, informamos que el PVP no incluye los gastos inherentes a la adquisición: ITP (Cataluña): 38.500€. Cálculo realizado aplicando la tarifa progressiva vigente por tramos de valor (10%). El importe final podria variar por su perfil personal o discapacidad. Gastos de formalización aproximados: Notaría 1.500€ y Registro 1.000€ (variable según arancel), Gestoría 500€. Los honorarios de agencia corren de cuenta de la parte vendedora, salvo acuerdo previo expreso con el comprador.~

Detalles

Dormitorios
2
Baño
1
Tamaño de propiedad
58.00 sqft
Año de construcción
1949
Actualizado en abril 24, 2026 a 2:03 am

Dirección

  • Ciudad Barcelona
  • Código postal 08025
  • Zona Eixample

Información de contacto

Immobiliaria Barcelona
  • Immobiliaria Barcelona
  • 932 107 093
Ver anuncio

Pregunte por este inmueble