Immobiliària Barcelona

Piso regio de 5 habitaciones, gran terraza de 316m2 y plaza de parking

  • 295.000€
17600 Figueres
Comprar Reformar Parcialmente
Piso regio de 5 habitaciones, gran terraza de 316m2 y plaza de parking
17600 Figueres
  • 295.000€

Descripción

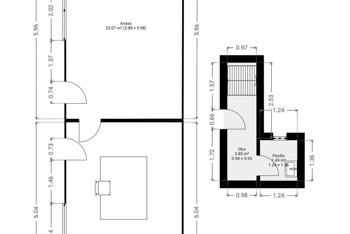
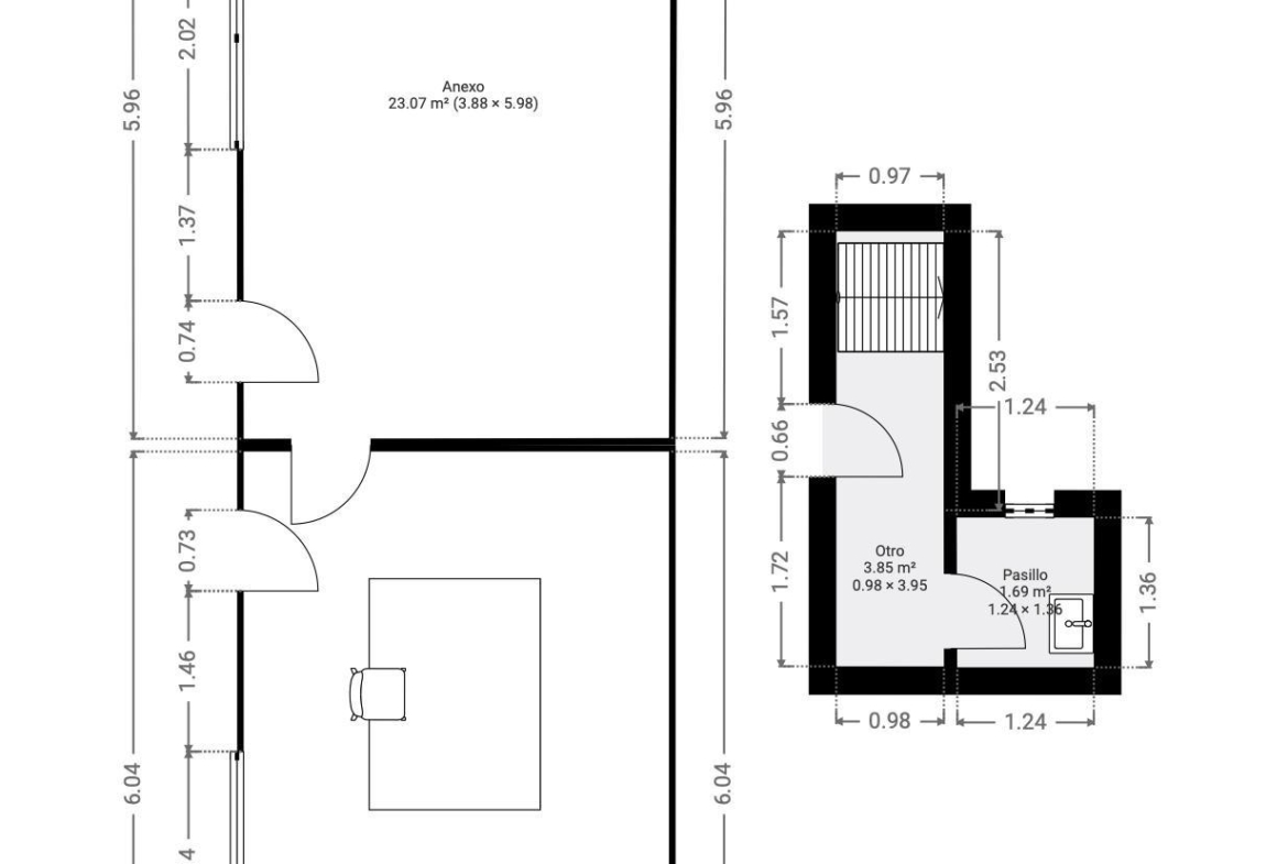
Piso regio en Figueres Costa Brava, con 524,4m2 construidos y 163,06m2 útiles, de los cuales el piso comprende 192,4m2, la terraza de 316m2 de uso privativo a la cual sólo se puede acceder desde este piso y que dispone de dos locales trasteros de 24m2 cada uno, y un local adyacente de 16m2 con un baño independiente, ahora utilizado como bodega, originalmente el alojamiento donde residía el servicio de la casa. El piso está situado en un muy buen edificio con servicio de portería. Vivienda muy luminosa orientada a sur y que se distribuye de la siguiente manera: gran salón comedor con salidas a la terraza frontal con vistas a la plaza y una chimenea interior que separa el comedor del salón, cocina independiente, cuatro habitaciones dobles, una con acceso a un patio interior y la otra suite con un baño con ducha reformado, una habitación individual, dos baños con bañera -uno de los dos reformado- y el recibidor. Desde una de las habitaciones tenemos acceso a la terraza cerrada en la parte trasera que nos hace función de lavandería y a su vez con acceso mediante escaleras a la gran terraza de 316m2. El piso dispone calefacción y aire acondicionado por conductos, suelos de parquet. Dispone también en el mismo edificio de una plaza para coche grande. El edificio tiene servicio de portería, ascensor y acceso adaptado para personas de movilidad reducida. Está situado a 100m del supermercado Mercadona, 100m de la estación de tren y autobús, 600m de la Rambla y la zona comercial de Figueres, 950m del centro de atención primaria Josep Masdevall, 2,2km de la estación del AVE, 15km de las playas de Empuriabrava, 25km del Perthus y la frontera francesa, 50km del Aeropuerto Girona Costa Brava. Información legal al consumidor(Art. 20 TRLGDCU): El precio indicado incluye los honorarios de intermediación inmobiliaria., y NO incluye impuestos, gastos notariales, gastos registrales ni mobiliario. Impuesto Transmisión Patrimonial del 10 % sobre el precio de venta, tasación o valoración catastral. Los gastos de notaría y registro según tarifas legales. La ficha informativa completa está disponible en https://atc.gencat.cat/es/tributs/itpajd/.~

Detalles

Dormitorios
5
Baños
4
Tamaño de propiedad
523.00 sqft
Año de construcción
1973
Actualizado en abril 18, 2026 a 1:43 am

Dirección

  • Ciudad Figueres
  • Código postal 17600
  • Zona Centre

Información de contacto

Immobiliaria Barcelona
  • Immobiliaria Barcelona
  • 932 107 093
Ver anuncio

Pregunte por este inmueble